Sale

Sale of an exclusive penthouse, 4+kk/T/GS, 124 m², Primošten, Croatia

124 m2 Primoštěn, Croatia 630 000 EUR / 15 353 100 CZK

About real estate

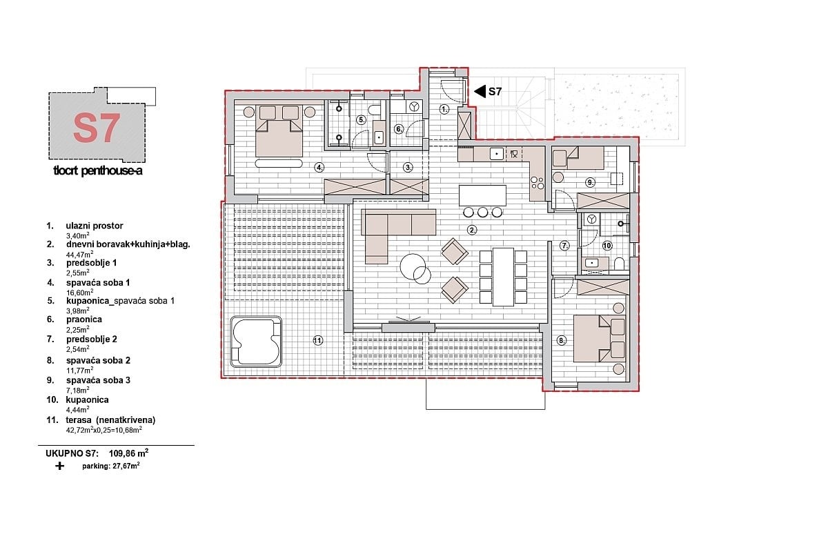
We offer for sale a luxury penthouse in a modern residential building, facing south, with top-class architecture and a magnificent panoramic view of the sea. The spacious interior of 124 m² is complemented by a spectacular terrace (43 m²) with a private hot tub, which is an ideal place to relax.

The apartment is located on the 3rd floor and is designed with an emphasis on comfort and practicality. The layout includes an entrance hall with a laundry room, an airy open-space living room with a kitchen and dining area, two comfortable bedrooms, a modern bathroom, and a master bedroom with its own bathroom and direct access to the terrace.

A garage parking space with a charging station for electric cars is included. The penthouse is equipped with high-quality materials and modern technologies: underfloor heating in living rooms and bathrooms, electric blinds, security doors, and walk-in showers.

All amenities—shops, restaurants, and beaches—are in the immediate vicinity, making this an exceptional opportunity to purchase modern living on the Adriatic. Construction is scheduled for completion in Q4 2026.

Property parameters

Order number

N7755

Price

630 000 EUR / 15 353 100 CZK

Address

Primoštěn, Croatia

Type

Apartments

Disposition

4 + kitchenette

Usable area

124 m2

All parameters