Prodej

Prodej bytu 2+kk/S, 51 m2, Praha 1 – Nové Město

51 m2 V jirchářích, Praha 1 - Nové Město Prodáno

O nemovitosti

Nabízíme k prodeji slunný a dobře dispozičně uspořádaný byt 2+kk v klidné ulici V Jirchářích v Praze na Novém Městě v blízkosti Národní třídy. Nemovitost se nachází ve 2. patře menšího měšťanského domu.

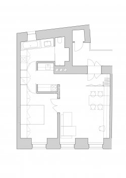
Do bytu se vchází z pavlačové chodby a se skládá z hlavní obytné místnosti, kuchyňského koutu, ložnice a koupelny s umyvadlem, vanou, sprchovým koutem a toaletou. Jeho rekonstrukce byla dokončena v roce 2023. Byly zde provedeny nové rozvody, štukové omítky, položena dřevěná podlaha, nově osazena okna a interiérové dveře, zhotovena koupelna s toaletou a instalován plynový kotel. Byt se prodává nezařízený, ale má do detailu promyšlenou dispozici s umístěním všech spotřebičů a úložných prostor – plánek nemovitosti je součástí fotogalerie.

Bytová jednotka má vysoké stropy a právě okna z hlavní místnosti a okno z ložnice, které vedou na jižní světovou stranu, dávají celému bytu světlost a vzdušnost. Výhledy směřují na střechy domů a nedaleko stojící kostel sv. Michala. Okno v koupelně je umístěné do vnitrobloku domu. Byt je vytápěn plynem. Podlahová plocha bytu je 51 m2 (výměra dle prohlášení vlastníka 48,1 m2).

K bytu náleží polovina komory, která je na pavlačové chodbě a sklepní kóje v suterénu domu.
Výhodou této nemovitosti je orientace na jižní stranu a z toho plynoucí menší nároky na topení, velmi dobrá dispozice, příjemné výhledy, klidná zóna a výborná dopravní dostupnost (4 min. pěšky na Národní třídu). Byt odpovídá vysokým nárokům současného standardu bydlení.

Byt stojí v malebné historické části staré Prahy. Dům samotný má původní schodiště (v domě není výtah), ve dvoře domu jsou pavlače (na patře jsou vždy dva byty), dvůr je zastřešený. Vstupní dveře, fasáda, střecha i společné prostory jsou po rekonstrukci a v dobrém stavu.

Doporučujeme prohlídku.

Parametry nemovitosti

Číslo zakázky

N6762

Cena

Prodáno

Druh

Dispozice

Užitná plocha

51 m2

Všechny parametry