Prodej

Prodej designového bytu 3+kk/P se zahradou, Praha 6 - Suchdol

114 m2 Pod rybníčkem, Praha-Suchdol - Suchdol Prodáno

O nemovitosti

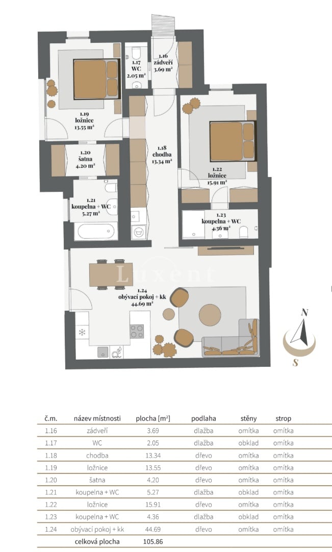
Nabízíme k prodeji designový byt 3+kk, v II.etapě projektu Rezidence Pod Rybníčkem, se samostatným vstupem a zahrádkou v oblíbené lokalitě Praha 6 - Suchdol. Byt má 114 m2 podlahovou plochu a celková užitná plocha je 322 m2 (včetně zahrádky). K bytu náleží dvě parkovací stání.

Interiér bytu zahrnuje vstupní zádveří s prostorem na vestavěné šatní skříně (3,70 m2), vstupem na samostatnou toaletu a navazující chodbu, ze které je vstup do jednotlivých místností. Po celé délce chodby je prostor na umístění šatních skříní a tím vznikne dostatek úložného prostoru. Krásný obývací pokoj s kuchyní (44,70 m2) nabízí vstup na zahrádku a pocit maximálního soukromí. Hlavní ložnice (13,55 m2) se šatnou (4,20 m2) a samostatnou koupelnou (5,27 m2) má výhledy a vstup na zahrádku. Další ložnice (16 m2) má samostatnou koupelnu se sprchovým koutem a toaletou.

Rezidence je zpracovaná ve vysokém standardu - Porotherm 50, fasáda obložena brazilským jasanem Garapa, dřevěná okna s izolačními trojskly, střecha falcový plech, třívrstvé dřevěné podlahy, mramorové podlahy, podlahové vytápění, bezpečnostní a kamerový systém Jablotron, příprava pro předokenní žaluzie. Vytápění je zajištěno tepelným čerpadlem STIEBEL ELTRON vzduch - voda.

Starý Suchdol, jedna z nejžádanějších částí Prahy 6, dokonale spojuje komfort městského života s klidem okolní přírody a blízkostí Vltavy. Okolní chráněné přírodní parky Kozí hřbety a Tiché údolí protkané stezkami poskytují příležitosti k pěší turistice i cyklistice. Jedná se po všech stránkách o ideální místo k bydlení, které uspokojí všechny důležité aspekty života, sociální, kulturní i sportovní vyžití. Rezidence se nachází v prestižní lokalitě s kompletní občanskou vybaveností v pěší dostupnosti.

Jen 3 minuty chůze od domu najdete místní základní školu, zatímco za 5 minut pohodlné procházky dorazíte k lékárně, poště, útulným kavárnám, restauracím i specializovaným obchodům včetně prodejny sportovních potřeb. Milovníky aktivního životního stylu potěší krytý bazén a sportovní stadion v areálu kampusu ČZU, vzdálený pouhých 15 minut pěšky, s možností využití i pro veřejnost. Skvělou dopravní dostupnost zajišťují autobusové linky 107 a 147, které vás ve špičkovém intervalu 10 minut dopraví na metro Dejvická za přibližně 10 minut. Nejbližší autobusová zastávka se nachází hned u základní školy, tedy jen 3 minuty chůze od rezidence.

Parametry nemovitosti

Číslo zakázky

N7342

Cena

Prodáno

Adresa

Pod rybníčkem, Praha-Suchdol - Suchdol

Druh

Byty

Dispozice

3+kk

Užitná plocha

114 m2

Všechny parametry