Prodej

Prodej vily 239 m², na pozemku 1644 m², Praha 4 - Modřany

239 m2 Na Floře, Praha 12 - Modřany Prodáno

O nemovitosti

Nabízíme k prodeji třípatrovou vilu z 30. let minulého století v klidné části Prahy - Modřany. Vila s krásnou zahradou se vzrostlými stromy zajišťuje maximální soukromí a dechberoucí výhledy do okolí. Vila stojí ve svažitém pozemku o rozloze 1 644 m² a nabízí podlahovou plochu 239 m².

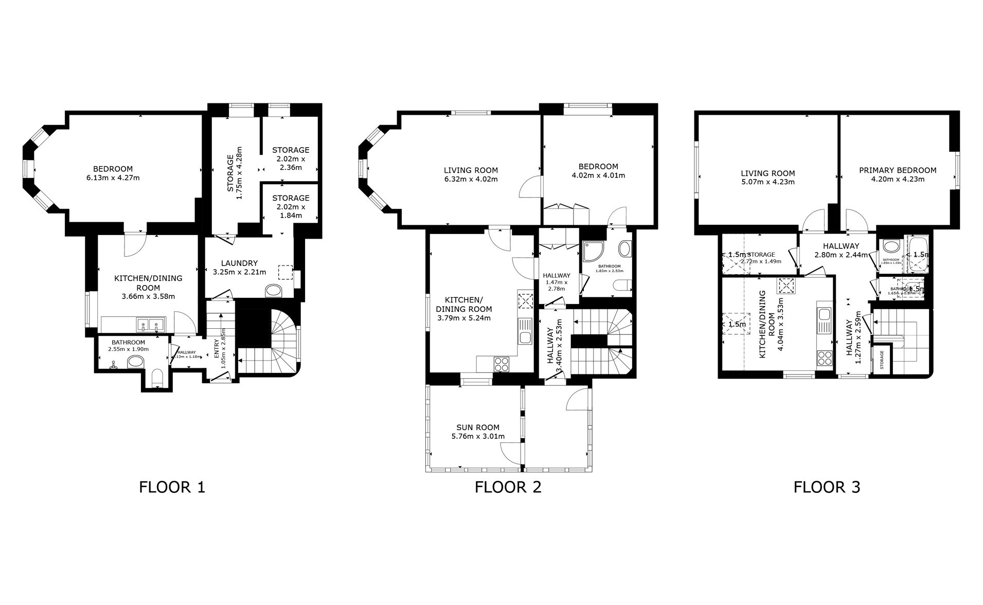
Dům má tři nadzemní podlaží propojená vnitřním schodištěm a v současnosti každé z nich slouží jako samostatná bytová jednotka.

1. nadzemní podlaží tvoří pokoj (26 m²), kuchyň (13 m²), koupelna se sprchovým koutem a toaletou, předsíň, technická místnost a sklep (16 m²). K dispozici je i samostatná terasa vhodná pro venkovní posezení.

2. nadzemní podlaží nabízí obývací pokoj s krbovými kamny (25 m²), ložnici (16 m²), kuchyň (20 m²), koupelnu se sprchovým koutem a toaletou, předsíň a zimní zahradu (17 m²) s krásným výhledem do zeleně.

3. nadzemní podlaží disponuje obývacím pokojem s balkonem (21,5 m²) s nádherným výhledem, ložnicí (18 m²), kuchyní (14 m²), komorou (4 m²), předsíní, koupelnou a samostatnou toaletou.

V domě jsou zachované původní dřevěné podlahy a v 1. a 2. NP jsou dřevěná eurookna s dvojskly. Ve 3. NP plastová okna a podlahová krytina je kombinací lina a dlažby.

Vytápění a ohřev vody zajišťuje plynový kotel. Dům je napojen na městský vodovod a kanalizaci, na pozemku se navíc nachází vlastní studna.

Zahrada je díky svažitému terénu členitě řešená a nabízí řadu příjemných zákoutí. Najdete zde pergolu s posezením, venkovní sklípek, úložný prostor na zahradní náčiní, a také prostor pro pěstování zeleniny, ovoce a květin.

Součástí nemovitosti jsou tři samostatné garáže, jedno venkovní parkovací stání a velkou výhodou je výtah z garáže přímo na zahradu.

Tato vila je ideální jak pro rodinné či vícegenerační bydlení, tak i jako sídlo firmy.

Nemovitost se nachází v klidné rezidenční čtvrti Modřany, která nabízí výbornou dostupnost do centra Prahy i kvalitní spojení MHD. Lokalita je bohatá na volnočasové aktivity – cyklostezky podél Vltavy, minigolf, plážový volejbal, zábavní park, restaurace a kavárny – vše v pohodlné pěší vzdálenosti.

Veškerá občanská vybavenost je v místě.

Energetická třída G je uvedena dočasně – po dodání energetického štítku bude aktualizována skutečná třída energetické náročnosti této nemovitosti.

Parametry nemovitosti

Číslo zakázky

N7736

Cena

Prodáno

Adresa

Na Floře, Praha 12 - Modřany

Druh

Domy

Kategorie

Rodinný

Užitná plocha

239 m2

Všechny parametry