Prodej

Prodej pozemku, 1 764 m², Praha 4 - Hodkovičky

1 764 m2 Na lysinách, Praha 4 na vyžádání

O nemovitosti

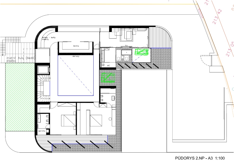
Nabízíme k prodeji stavební pozemek o celkové ploše 1 764 m². Mírně svažitý pozemek obdélníkového tvaru a s jižní orientací, se nachází v klidné ulici Na Lysinách, Praha 4, mezi stávající zástavbou. Kompletní inženýrské sítě u pozemku.

Dle územního plánu se jedná o OB – čistě obytné. Jako hlavní využití jsou zde plochy pro bydlení.
Přípustné využití: Byty v nebytových domech, mimoškolní zařízení pro děti a mládež, mateřské školy, ambulantní zdravotnická zařízení, zařízení sociálních služeb.
Podmíněně přípustné využití: Pro uspokojení potřeb souvisejících s hlavním a přípustným využitím lze umístit zařízení pro neorganizovaný sport, obchodní zařízení s celkovou hrubou podlažní plochou nepřevyšující 300 m2, parkovací a odstavné plochy, garáže pro osobní automobily.
Dále lze umístit: Lůžková zdravotnická zařízení, církevní zařízení, malá ubytovací zařízení, školy, školská a ostatní vzdělávací zařízení, kulturní zařízení, administrativu a veterinární zařízení v rámci staveb pro bydlení při zachování dominantního podílu bydlení, ambasády, sportovní zařízení, zařízení veřejného stravování, nerušící služby místního významu.

Veškerá občanská vybavenost, zastávka MHD 100 m, škola i školka v dosahu. Nedaleko Lesopark Hodkovičky, Mezinárodní škola The Prague British School, golfové hřiště, cyklostezka a mnoho sportovního vyžití.

Pro bližší informace kontaktujte naši realitní kancelář.

Parametry nemovitosti

Číslo zakázky

N6974

Cena

na vyžádání

Adresa

Na lysinách, Praha 4

Druh

Pozemky

Kategorie

Bydlení

Plocha pozemku

1 764 m2