Prodej

Prodej luxusní vily s výhledem na oceán 2+kk, 165 m², Candidase, Bali - Indonésie

57 m2 Candidasa, Indonésie 299 000 USD / 6 193 187 Kč

O nemovitosti

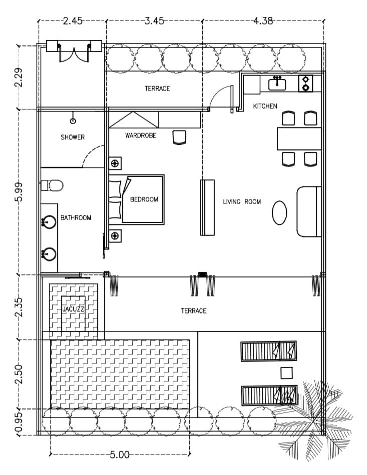
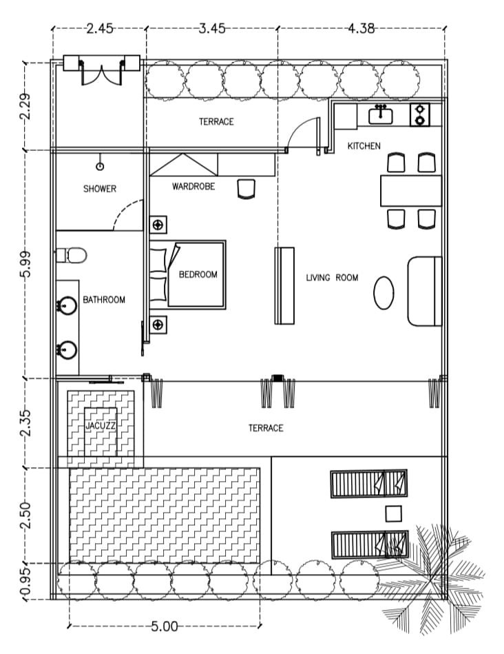
Nabízíme k prodeji exkluzivní vilu o dispozici 2+kk a celkové ploše 165 m², situovanou v prestižním Neano Resortu v Candidase na východním Bali v Indonésii. Vila je kompletně dokončena a připravena k okamžitému užívání či pronájmu, a to již od jara 2026. Tato výjimečná nemovitost propojuje luxusní bydlení s panenskou přírodou a nabízí zcela unikátní panoramatické výhledy – z jedné strany na azurový Indický oceán, z druhé na majestátní sopku Agung. Důraz byl kladen na maximální soukromí, komfort a harmonické začlenění stavby do okolní krajiny.

Vila disponuje prostorným obývacím pokojem s moderní kuchyní, soukromou terasou a vlastním bazénem. Interiér je proveden v nadstandardních materiálech a elegantním designu, který citlivě kombinuje moderní luxus s prvky indonéské tradice. Součástí zázemí jsou také prémiové úklidové služby a pravidelná údržba, zajišťující bezstarostné užívání nemovitosti.

Architektonický návrh vil v resortu vznikl pod vedením českého architekta Davida Kvasničky ve spolupráci s profesionálními indonéskými architekty. Celá realizace je průběžně dozorována českým týmem, který garantuje vysokou kvalitu provedení stavby, použitých technologií i úprav okolí.

Neano Resort se nachází v klidné a autentické části východního Bali, která je ideální pro relaxaci i aktivní trávení volného času. Candidasa je vyhledávanou lokalitou pro potápění a šnorchlování, přičemž v bezprostředním okolí se nacházejí unikátní místa jako Tepelong Island či ostrovy Mimpang s výjimečnou viditelností pod vodou přesahující 30 metrů. Pláž je dostupná během několika minut chůze, centrum Candidasy pak krátkou jízdou autem.

Nemovitost je nabízena formou leaseholdu na 25 let s možností prodloužení o dalších 25 let a představuje atraktivní investiční příležitost s potenciálem stabilního výnosu z pronájmu. Vilu vám představí česky mluvící makléř, který zajistí kompletní servis, pohodlnou orientaci v projektu i případnou profesionální správu pronájmu.

Parametry nemovitosti

Číslo zakázky

N7867

Cena

299 000 USD / 6 193 187 Kč

Adresa

Candidasa, Indonésie

Druh

Domy

Kategorie

Vila

Užitná plocha

57 m2

Všechny parametry