Prodej

Prodej moderní vily, 230 m², Zadar - Chorvatsko

230 m2 Zadar, Chorvatsko 710 000 EUR / 17 295 600 Kč

O nemovitosti

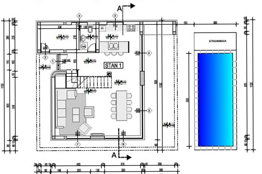
Nabízíme k prodeji nově postavenou moderní vilu s bazénem, situovanou na klidném místě nedaleko vyhledávaného historického města Zadar. Nemovitost se nachází na pozemku o velikosti 602 m² a nabízí celkovou obytnou plochu 230 m², rozloženou do dvou nadzemních podlaží.

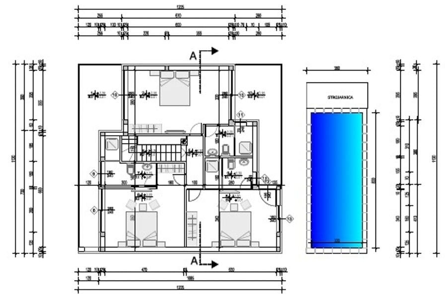
Dispozice přízemí zahrnuje prostorný obývací pokoj s přímým vstupem na krytou terasu, plně vybavenou kuchyň s jídelním koutem, samostatnou toaletu a technické zázemí. V patře se nacházejí tři komfortní ložnice, každá s vlastní koupelnou, a dále dvě kryté terasy s částečným výhledem na moře.

Vila je plně je klimatizovaná, koupelny jsou vybaveny podlahovým vytápěním a solárním systémem pro ohřev vody.

Dominantním prvkem exteriéru je elegantní bazén s vodopádem a hydromasážními tryskami, zasazený do pečlivě udržované zahrady obklopené tradičním dalmatským kamenem. Součástí zahrady je rovněž moderní grilovací zóna ideální pro letní posezení.

K vile náleží šest parkovacích míst.

Nemovitost se nachází v blízkosti nádherných písečných pláží a křišťálově čistého moře, což z ní činí atraktivní volbu pro rekreační bydlení i investici do prémiové nemovitosti v oblasti s vysokou poptávkou.

Parametry nemovitosti

Číslo zakázky

N7620

Cena

710 000 EUR / 17 295 600 Kč

Adresa

Zadar, Chorvatsko

Druh

Domy

Kategorie

Vila

Užitná plocha

230 m2

Všechny parametry