Přehrát video
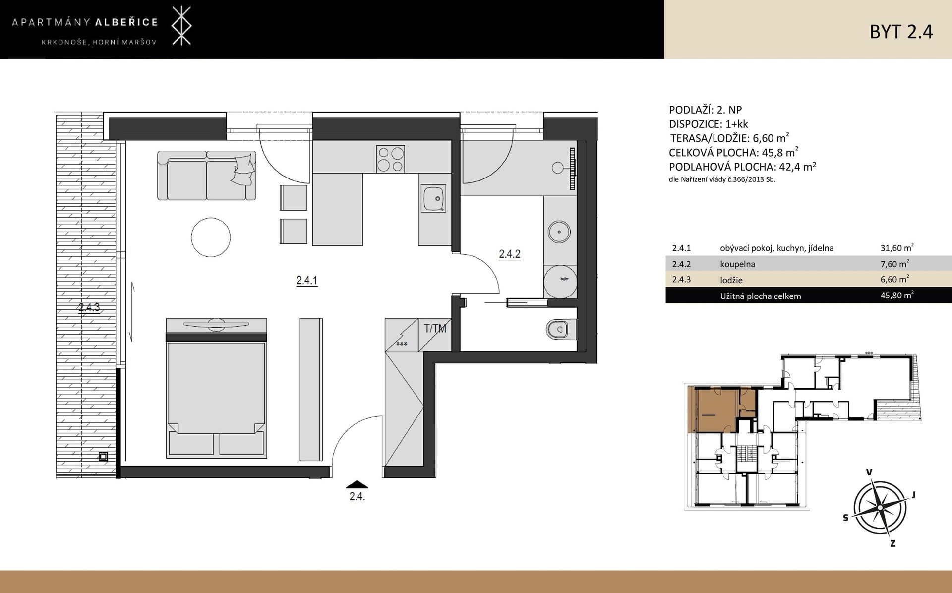
V nově vznikajícím projektu Apartmány Albeřice nabízíme k prodeji apartmán o dispozici 1+kk a ploše 39,2 m2 s lodžií 6,6 m2 – celkem 45,8 m2. Apartmán se nachází ve 2. NP projektu a je orientován na SV. Vybaven je ve vysokém standardu, který je možné rozšířit do nadstandardního provedení, zejména co do rozsahu obložení stěn a stropů jednotlivých pokojů rustikálním stařeným dřevem. K apartmánu patří úložné prostory v zabezpečeném samostatném skladu. Další jeho součástí je kryté parkovací stání. K využití bude také společná lyžárna v 1. NP s uzamykatelnými boxy.
Jedinečný projekt – luxusní horské Apartmány Albeřice – nabízí neotřelost a vysokou kvalitu v komorní horské luxusní „chalupě“ s pouze jedenácti apartmány, kromě přízemí vždy maximálně tři apartmány na patře. Nachází se v malebné, bez problémů celoročně dostupné obci Dolní Albeřice, která si jako jedna z mála zachovala svůj původní krkonošský ráz. Projekt dosahuje mimořádné energetické úspornosti třídy A.
Na vzniku nové rezidence se podíleli architekti studia Morix a je určena milovníkům soukromí, originální architektury a osobitého stylu. Apartmány mají promyšlené dispozice a neotřelý interiérový design v moderním rustikálním horském stylu s balkony nebo terasami a v přízemí s předzahrádkou. Parkování je kryté u domu a k apartmánům je k dispozici dostatek úložných prostor pro kola, SNB a lyže celé rodiny ve sklepích i ve společné lyžárně s uzamykatelnými boxy. Dům má výtah, vysoký standard vybavení společných prostor, je vytápěn tepelnými čerpadly a součástí standardu apartmánů jsou venkovní žaluzie i SMART systém řízení.
Projekt Apartmány Albeřice vznikne v Dolních Albeřicích – 4 km severně z Horního Maršova na místě někdejší mlékárny a později penzionu, v klidu neporušené přírody, zcela stranou turistických davů, a přesto jen 15 min autem na sjezdovky horských středisek Pec pod Sněžkou, Svoboda nad Úpou nebo Jánské Lázně. Až ke dveřím vede celoročně udržovaná asfaltová cesta. V blízkosti projektu je rodinný vlek a přímo kolem dveří domu vedou turistické trasy i cyklostezky – kdy např. na lanovku pod Sněžku nebo do Horní Malé Úpy do pivovaru Trautenberk v Horním Maršově dojedete jen za cca hodinku jízdy na kole. V létě pak potěší nedaleká rozsáhlá vodní plocha napájená horským potokem. Nedaleko apartmánového domu se nachází tradiční hotel Vápenka s restaurací a další menší občerstvovací místa, dále půjčovna kol anebo muzeum Vápenka. Dolní Albeřice si zachovaly původní nedotčený horský ráz krkonošské vesnice s tradicí mnoha staletí, bez hustoty nové výstavby a náporu turismu. Za vydatnější občanskou vybaveností a společenským životem dojedete pohodlně během čtvrthodinky autem. Celé údolí i okolí projektu je klidné a umožňuje svobodný pohyb nejen pro vaše děti ve volné horské přírodě svažitých luk a blízkého lesa. Je to místo, které vás okouzlí, upřednostňujete-li své soukromí, bez ve víru horských středisek, která ale máte během minut kdykoliv na dosah. Bližší informace rádi poskytneme v naší kanceláři.
Vizualizace jsou ilustrativní, reálné zhotovení se může lišit.
Číslo zakázky
AA-4
Cena
6 980 000 Kč
Druh
Dispozice
Užitná plocha
39 m2
| Zakázka | Dispozice | Patro | Užitná plocha | Podlahová plocha | Terasa/Balkón/Lodžie | Zahrada | Cena | |
|---|---|---|---|---|---|---|---|---|
| AA-1 | 2+kk | přízemí | 58 m2 | 63 m2 | 36 m2 / Ne / Ne | Ne | 9 490 000 Kč | Detail |
| AA-2 | 2+kk | přízemí | 58 m2 | 63 m2 | 67 m2 / Ne / Ne | Ne | 9 990 000 Kč | Detail |
| AA-3 | 3+kk | přízemí | 146 m2 | 156 m2 | 176 m2 / Ne / Ne | Ano (187 m2) | Rezervováno | Detail |
| AA-4 | 1+kk | 1. patro | 39 m2 | 42 m2 | Ne / Ne / 7 m2 | Ne | 6 980 000 Kč | Detail |
| AA-5 | 2+kk | 1. patro | 48 m2 | 54 m2 | Ne / Ne / 11 m2 | Ne | 9 480 000 Kč | Detail |
| AA-6 | 3+kk | 1. patro | 143 m2 | 154 m2 | Ne / 21 m2 / 2 m2 | Ne | 22 490 000 Kč | Detail |
| AA-7 | 2+kk | 1. patro | 59 m2 | 54 m2 | Ne / Ne / 11 m2 | Ne | Prodáno | Detail |
| AA-8 | 2+kk | 2. patro | 48 m2 | 53 m2 | Ne / Ne / 9 m2 | Ne | 9 680 000 Kč | Detail |
| AA-9 | 3+kk | 2. patro | 144 m2 | 154 m2 | Ne / 22 m2 / 2 m2 | Ne | 24 490 000 Kč | Detail |
| AA-10 | 3+kk | 2. patro | 92 m2 | 102 m2 | Ne / Ne / 20 m2 | Ne | 16 980 000 Kč | Detail |
| AA-11 | 3+kk | 3. patro | 98 m2 | 103 m2 | Ne / Ne / 14 m2 | Ne | Prodáno | Detail |

