Prodej

Prodej apartmánu 2+kk/B/L, 166,2 m2, v luxusním horském projektu Apartmány Albeřice, Krkonoše – Horní Maršov

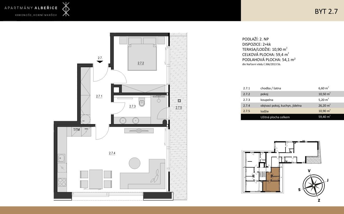
59 m2 Horní Maršov, Dolní Albeřice, Trutnov, Královéhradecký kraj Prodáno

Půdorysy

O nemovitosti

V nově vznikajícím projektu Apartmány Albeřice nabízíme k prodeji apartmán o dispozici 2+kk a ploše 143,2 m2 s lodžií 1,8 m2 a balkonem 21,2 m2– celkem 166,2 m2. Apartmán se nachází ve 2. NP projektu a je orientován na jih, východ a západ. Vybaven je ve vysokém standardu, který je možné rozšířit do nadstandardního provedení, zejména co do rozsahu obložení stěn a stropů jednotlivých pokojů rustikálním stařeným dřevem. K apartmánu patří úložné prostory v zabezpečeném samostatném skladu. Další jeho součástí je kryté parkovací stání. K využití bude také společná lyžárna v 1. NP s uzamykatelnými boxy.

Jedinečný projekt – luxusní horské Apartmány Albeřice – nabízí neotřelost a vysokou kvalitu v komorní horské luxusní „chalupě“ s pouze jedenácti apartmány, kromě přízemí vždy maximálně tři apartmány na patře. Nachází se v malebné, bez problémů celoročně dostupné obci Dolní Albeřice, která si jako jedna z mála zachovala svůj původní krkonošský ráz. Projekt dosahuje mimořádné energetické úspornosti třídy A.

Na vzniku nové rezidence se podíleli architekti studia Morix a je určena milovníkům soukromí, originální architektury a osobitého stylu. Apartmány mají promyšlené dispozice a neotřelý interiérový design v moderním rustikálním horském stylu s balkony nebo terasami a v přízemí s předzahrádkou. Parkování je kryté u domu a k apartmánům je k dispozici dostatek úložných prostor pro kola, SNB a lyže celé rodiny ve sklepích i ve společné lyžárně s uzamykatelnými boxy. Dům má výtah, vysoký standard vybavení společných prostor, je vytápěn tepelnými čerpadly a součástí standardu apartmánů jsou venkovní žaluzie i SMART systém řízení.

Projekt Apartmány Albeřice vznikne v Dolních Albeřicích – 4 km severně z Horního Maršova na místě někdejší mlékárny a později penzionu, v klidu neporušené přírody, zcela stranou turistických davů, a přesto jen 15 min autem na sjezdovky horských středisek Pec pod Sněžkou, Svoboda nad Úpou nebo Jánské Lázně. Až ke dveřím vede celoročně udržovaná asfaltová cesta. V blízkosti projektu je rodinný vlek a přímo kolem dveří domu vedou turistické trasy i cyklostezky – kdy např. na lanovku pod Sněžku nebo do Horní Malé Úpy do pivovaru Trautenberk v Horním Maršově dojedete jen za cca hodinku jízdy na kole. Nedaleko apartmánového domu se nachází tradiční hotel Vápenka s restaurací a další menší občerstvovací místa, dále půjčovna kol anebo muzeum Vápenka. Dolní Albeřice si zachovaly původní nedotčený horský ráz krkonošské vesnice s tradicí mnoha staletí, bez hustoty nové výstavby a náporu turismu. Za vydatnější občanskou vybaveností a společenským životem dojedete pohodlně během čtvrthodinky autem. Celé údolí i okolí projektu je klidné a umožňuje svobodný pohyb nejen pro vaše děti ve volné horské přírodě svažitých luk a blízkého lesa. Je to místo, které vás okouzlí, upřednostňujete-li své soukromí, bez ve víru horských středisek, která ale máte během minut kdykoliv na dosah. Bližší informace rádi poskytneme v naší kanceláři.

Parametry nemovitosti

Číslo zakázky

AA-7

Cena

Prodáno

Druh

Dispozice

Užitná plocha

59 m2

Všechny parametry

Detail projektu

Zakázka Dispozice Patro Užitná plocha Podlahová plocha Terasa/Balkón/Lodžie Zahrada Cena
AA-1 2+kk přízemí 58 m2 63 m2 36 m2 / Ne / Ne Ne 9 490 000 Kč Detail
AA-2 2+kk přízemí 58 m2 63 m2 67 m2 / Ne / Ne Ne 9 990 000 Kč Detail
AA-3 3+kk přízemí 146 m2 156 m2 176 m2 / Ne / Ne Ano (187 m2) Rezervováno Detail
AA-4 1+kk 1. patro 39 m2 42 m2 Ne / Ne / 7 m2 Ne 6 980 000 Kč Detail
AA-5 2+kk 1. patro 48 m2 54 m2 Ne / Ne / 11 m2 Ne 9 480 000 Kč Detail
AA-6 3+kk 1. patro 143 m2 154 m2 Ne / 21 m2 / 2 m2 Ne 22 490 000 Kč Detail
AA-7 2+kk 1. patro 59 m2 54 m2 Ne / Ne / 11 m2 Ne Prodáno Detail
AA-8 2+kk 2. patro 48 m2 53 m2 Ne / Ne / 9 m2 Ne 9 680 000 Kč Detail
AA-9 3+kk 2. patro 144 m2 154 m2 Ne / 22 m2 / 2 m2 Ne 24 490 000 Kč Detail
AA-10 3+kk 2. patro 92 m2 102 m2 Ne / Ne / 20 m2 Ne 16 980 000 Kč Detail
AA-11 3+kk 3. patro 98 m2 103 m2 Ne / Ne / 14 m2 Ne Prodáno Detail

Zatáhněte pro více položek